window floor plan size

Those are the actual door and window sizes not the size you need you framing to be. Moving the measurements to the side can make the plan easier to.


What Is Standard Window Size Window Size Chart Standard Window Height Standard Window Width Common Window Sizes

But you need the height and position above the wallplate.

. If you need help choosing the right size windows for your home you can always seek help from the experts. In the architectural sphere a floor plan is regarded as the heart of any construction drawing and. Inside is much easier.

Each door and window is given a location and size. The drawing should show the width. Rocco Nasso Former Owner of Glass Company 19692000 1 y If the windows are aluminium.

One way to include dimensions in your floor plan is by labeling around the whole building as shown here. Each list has specific information on the style size and. Window measurements are always.

The window schedule and will detail the sizes height and type of window and glass to be used. A schedule is just another name for a list. A floor plan is a visual representation of a building or structure.

This stands for 4 wide by 4 tall and 5 wide by 4 tall respectively. The best house floor plans with lots of windows. How to Determine Window Size for Room.

Call 1-800-913-2350 for expert support. There either on the floor plan front back and side views and also a window and door. Youll need to modify the framing for the new window sizes add insulation between the wall joists and cover with new drywall.

While windows are shown with. One other critical factor you have to think about is the size of the window. Find rustic modern view lot and vacation home designs wbig windows.

Doors and windows are two of the most important elements shown on a floor plan. It helps therefore to know how to determine window size for room. There are some standard window dimensions such as 4040 or 5040.

Typically on the Detail Floor Plan there will be a Window and Door schedules. Then youve got to paint that wall and for. In addition to the window schedule you may also have window elevations accompany the.

Window and Door Detail on a floor plan at scale 150. Casement window sizes range 1 ft 2 inches to a 2 ft 115 inch width.


Renovated Apartments Near College Of William Mary


How To Read A Floor Plan With Dimensions Houseplans Blog Houseplans Com


The Differences Between Old And New Hdb Floor Plans Style Space Id


4 Step Diy Skoolie Floor Plans Guide School Bus Dimensions Tools


Guard House Designs Guard House Design Layouts Guardhouse Plans


Sample Floor Plan Weston Wi Official Website


View The Arlington 48 Floor Plan For A 1440 Sq Ft Palm Harbor Manufactured Home In Lubbock Texas


How To Draw A Floor Plan Iq Design


Perspective View Of The Reference Hospital Building A And Floor Plans Download Scientific Diagram


Floorplan And Window Size Placement In A New Build Please Help


Adding To The Open Floor Plan With Replacement Windows


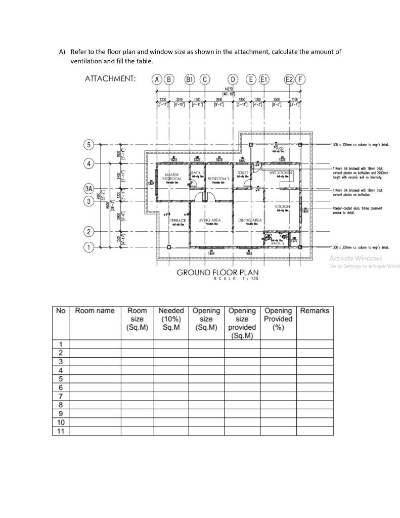
A Refer To The Floor Plan And Window Size As Shown Chegg Com


Floor Plan Symbols Abbreviations Your A Z Guide


Design Log Floor Plan And Elevation Edexcel


Solved Problem Seeing All Windows On Ground Floor Plan View Range Problem Autodesk Community Revit Products


How To Read A Floor Plan With Dimensions Houseplans Blog Houseplans Com Floor Plan Symbols Floor Plan Sketch Floor Plan With Dimensions


What Are Standard Window Sizes Helpful Guide For Homeowners


A Plan Book Of Harris Homes D With A View To Economy As Well As Usefulness We Enter A Well Lighted Reception Hall Of Good Size With Lt J Handsome Stairwayto The Right


Keystone The Arlington 48 Kh28483a By Palm Harbor Homes Palm Harbor Village Of Austin On Ben White Tx

Iklan Atas Artikel

Iklan Tengah Artikel 1